How to Draw House Cross Sections
A set of house construction drawings will include several cross sections. Both the local planning department and the construction crew will need these drawings. This tutorial will explain how to draft these sections by hand.
The more sophisticated (and expensive) home design programs have tools to generate cross sections. However, the time it takes to learn how to use a design program to the point of creating accurate sections can be longer than the time it takes to draw them by hand. It is also possible to do a bit of both. You can use a home design program to create your basic plans and then detail by hand the basic cross sections produced by the program.
Complete your floor plan drawings before drawing cross sections. See our Make Your Own Blueprint tutorial for instructions on creating detailed floor plans. If you are just starting out with your home design, check out our free Home Design Tutorial.
What are Cross Sections?
Cross section drawings show views of the home as though you had sliced down through the house from the top with a saw and looked in from the resulting opening. This view will help the builder better understand your interior and exterior construction details.
The more complex the home design, the more cross sections you should provide. These drawings are used to show such things as wall and roof framing details, exterior wall layers, stair construction and even interior details such as variances in floor and ceiling heights, soffits, moldings and cabinetry. Cross sections also show window details such as dimensions, exact locations with respect to interior walls and their heights relative to the ceiling or floor. Cross sections in general do not show finished wall or flooring materials aside from sections that specifically detail wall or floor layers.
How Many Cross Sections are Required?
The number of cross sections needed completely depends on the complexity of the design, your planning department requirements and who is building the house. If you have a very experienced construction crew and you plan to be on the job site often to answer questions, you will not have to detail items that involve common construction details for your region. If however, you are designing a home that does not follow the standards for your region, for instance you are planning to frame your exterior walls in a unique way in order to accommodate a different type of insulation or exterior finishing, it will be important to provide detailed cross sections for these elements.
In general, you should create cross sections for the following:
- Exterior wall layers
- Structural walls, posts or beams
- Stair framing details
- Floor and ceiling heights and variances
- Molding and trim work (only one is required for the house interior if all doors, windows and baseboards are to be trimmed in the same way)
- Cabinetry or custom built furniture (even if the construction crew is not responsible for this work it is good to include these so that they understand where cabinetry or furniture will need to be attached to the framing)
- Any other details that will help the builder understand the home design
The cross sections are created once your floor plans and elevations are finished. You need to have completed the structural design for the house, that is, determined the required size and location of all structural walls, posts and beams. Our Residential Structural Design module contains several pages explaining structural design and joist sizing for wood framed homes.
How Thick is a Cross Section?
The thickness of a cross section depends on the details that you want to highlight. Say for instance you want to show the details of a U-shaped stair construction. If you were to provide the cross section for only a very narrow line drawn through the stairs, you would end up with a view of only one side of the U flight of stairs. However, if you chose a section that was perhaps four feet thick centered on the center line of the U, you would then see both segments of the stairs.
It is entirely up to you how thick a section you want to detail. Simply draw a cross section line on the floor plans with the cross section arrow pointing in the direction the section will detail. Be careful with creating very thick cross sections since the number of layers of walls and views through doorways and openings will make the drawing confusing.
A Note on Scale
Choose a drawing scale appropriate for the size and detail of the cross section. If the section shows details through the entire width or length of the house, a scale of 1/4" : 1' should be adequate. If, however, you are showing the details of exterior wall layers where some layers are very thin, you will want to use a larger scale to make the sections more readable.
Steps to Drawing a Cross Section
1. Choose a Cross Section Line
To create a cross section, first draw a line on your floor plan that cuts through a section of the house for which you need to show cross section detail.
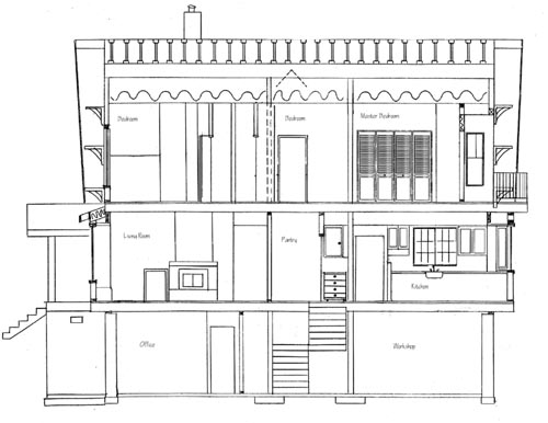
On the floor plan drawing above, at the upper and lower left there are two "A"s surrounded by circular icons with an arrow. These icons indicate that the construction drawings will contain a detailed cross section for this slice of the house. The arrow indicates in which direction the cross section "looks". Note that cross sections are also indicated for sections B-B, C-C and D-D.
The drawing below is the resulting A-A cross section. This tutorial will demonstrate how to draw this cross section.
The purpose of the A-A cross section is to show the basic shell of the house, the structural posts holding up the roof beam, the rough opening height of the windows and ceiling heights, including a lowered ceiling in the entrance. These structural posts, beams and windows will show up in other drawings but from a top-down view. These views combine to make the house more understandable as well as give further design details.
2. Draw the House Envelope
Start by drawing the width of the outer envelope of your house design through a given cross section line. Use the measurements on the floor plan drawings, house elevations and your other design notes to create accurate and to scale lines. Include the:
- House footings
- Foundation walls
- Above ground exterior walls
- Any windows that the section cuts through
- Exterior roof lines
3. Draw Floors and Ceilings
Next draw both the upper and lower lines of all floors and ceilings. You need to know the thickness of the flooring or ceiling joists and any attached flooring (usually plywood, oriented strand board or chip board). The heights from each floor to the ceiling or floor joists above must be accurately drawn to scale. Only include the framing materials in this drawing, not the finished ceiling and floor materials.
4. Side Wall Windows, Doors and Framing
For the two side walls at either side of the drawing, draft in any exterior window or door headers, sills or wall plates as well as the inside dimension of all of the above elements in the first step. See the drawing above.
5. Interior Walls and Structural Elements
Next draft interior walls, including their plates and any structural posts or beams visible in this section. See the cross section drawing above.
6. Facing Wall Windows and Doors
Next draw the rough openings of all the facing doors and windows. The cross section above shows window glazing as well but not the trim.
7. Variances in Ceiling or Floor Heights
Add in any dropped or raised floors or ceilings. See the drawing in the next step below.
8. Labeling
Finally label the rough openings for all doors and windows. Label the height of the windows, either from the floor or ceiling. Also detail ceiling heights, area names and any other elements to lend clarity to the drawing. See the figure above.
It is important that all elements are accurately drawn to scale since builders at the job site will often use an architect's scale to determine where to situate rough openings of windows or doors, ceiling heights, etc. It is not good enough to label these numbers. They need to be accurately drawn.
9. Add a Title Block
Add a title block in the lower right hand corner which indicates the:
- Name of the house or project
- Date
- Designer's name
- View name
- Drawing scale
Additional Cross Section Examples
Use the same technique to create your remaining cross sections. For cross sections spanning the entire width or length of the house, start with the building envelope and work your way in. The drawing below shows section D-D shown on the floor plan from Step 1 "Choose a Cross Section Line".
For wall layers, simply start from either the left or right hand side and work your way across, drawing each layer exactly to scale. You will want to use a much larger scale for wall layers. It is not necessary to show the entire height of any given wall. A single segment with all layers is sufficient. The drawing below shows a cross section detail for the walls, roof and the house foundation of a different home than our example above.
Some drawings may also be required for individual elements such decorative roof overhang supports or elaborate trim work required in a particular room.

